公寓案例当前位置:首页>产品展示>公寓案例

- 详细介绍


项目地址:金都花园
项目风格: 美式
设计师: 姜镇刚
项目经理:毛工
开工日期:2016年5月24日装修预算:半包价128000元(半包不含墙地砖、厨房厨柜、门窗套、地板、灯具、窗帘、电器、沙发、床)
设计说明:
美式风格,追求华丽、高雅的古典风格。居室色彩主调为白色。家具为古典弯腿式,家具、门、窗漆成白色。擅用各种花饰、丰富的木线变化、富丽的窗帘帷幄是西式传统室内装饰的固定模式,空间环境多表现出华美、富丽、浪漫的气氛。
设计师:

项目经理:

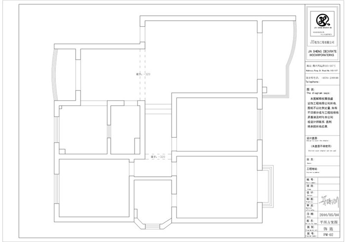
原始结构图:

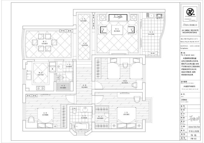
平面布置图:

客厅效果图:

餐厅效果图:

主卧效果图:

【佳盛装饰】恭贺 金都花园茹总豪宅开工大吉!茹总选择我们装修,看了我们的设计和施工,还有管理和服务都非常认可,同时也对比了几家装饰公司,最终还是选择了我们佳盛装饰,也知道佳盛装饰是衢州第一口碑家装品牌!我们佳盛团队一定努力不负众望,做好每一套房子,给您一个舒适,环保的家!!
开工照:小区实景


业主、设计师及项目经理合影:

开工礼炮庆祝:



开工动土仪式:

窗户玻璃保护:


水电完工实景图:










泥工完工实景图:






佳盛装饰公司简介:
2003年,衢州市佳盛装饰工程有限公司成立。其业务范围包括:住宅 、公寓、娱乐空间、办公空间、陈列展馆等工程的装饰装修、设计及施工。公司秉承“服务到永远”的经营理念,诚信打造透明工程,全力营造放心消费环境。用质量来表现,用服务来关怀,依靠客户口碑来不断提升佳盛品牌的知名度和影响力。
一直以来,“佳盛人”以客户的新房我的家为宗旨,以品牌建设为中心,致力于创造完美空间,展现精湛工艺。 在设计上,崇尚人性化、多元化、艺术化、更加强调功能、结构和形式的完整,追求材料、技术、空间的表现深度与精确,创造出别具风格的工作和生活环境。用领先的设计和专业的施工,做品味空间的引领者!
2010年被评为衢州市装饰行业协会副会长单位;
2011年被衢州市工商行政管理局评为衢州市家庭装饰消费维权示范单位;
2012年家装设计大赛中被衢州市广播电视总台评为观众最喜爱家装设计奖;
2013年被评为衢州市装修行业12315消费者维权联络站;
2012-2013年被衢州市柯城区住房城乡建设局评为衢州市家装行业骨干企业;
2014年被装饰协会评为衢州市首批倡导绿色装修单位;
2014年被衢州市工商行政管理局评为衢州市诚信装饰公司;
2011-2016年被衢州晚报评为十家最值得信赖的装饰企业;
2016年被市场监督管理局评为衢州市诚信装饰企业;
佳盛装饰,期待与您共同长期发展!


衢州市佳盛装饰工程有限公司
地址:浙江省衢州市西区双岭南路285号(翡翠湾小区东侧)
电话:0570- 3068373
手机:13867013688
联系人:周先生

衢州市佳盛装饰工程有限公司
地址:浙江省衢州市西区双岭南路285号(翡翠湾小区东侧)
电话:0570- 3068373
手机:13867013688
联系人:周先生
网址:www.qzjszs.com
- 上一个:衢州公馆俞总 下一个:香榭丽舍16-1-101返回产品列表



