公寓案例当前位置:首页>产品展示>公寓案例

- 详细介绍


项目地址:紫荆小区
项目风格:混 搭
设计师: 胡建新
项目经理:毛 工
开工日期:2016年6月13日
装修预算:半包价138000元(半包不含墙地砖、厨房橱柜、门窗套、地板、灯具、窗帘、电器、沙发、床)
设计说明:
混搭”装饰风格是一种特异的表现形式,它可以摆脱沉闷,突出重点,符合了当今人们追求个性、随意的生活态度。 需要强调的是,“混搭”不是百搭,不是人为地制造出。给别人一种眼前一亮的感觉。比较个性
设计师: 胡建新

项目经理:毛 工

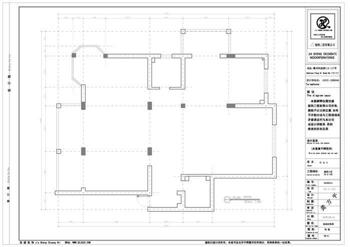
一层原始结构图:

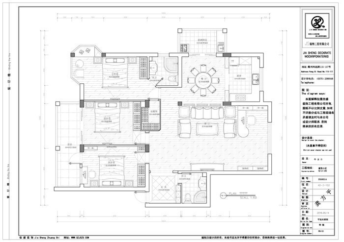
平面布置图:

客厅效果图:

餐厅效果图:

【佳盛装饰】恭贺 紫荆小区牛姐豪宅开工大吉!牛姐第二次选择我们装修,那是因为我们的设计和施工真的可以让人放心,还有管理和服务都非常认可,选择了我们佳盛装饰,我们佳盛团队一定会更努力做好每一件事,做好每一套房子,给您一个舒适,环保的家!!!
开工照:






水电完工实景图:








佳盛装饰公司简介:
2003年,衢州市佳盛装饰工程有限公司成立。其业务范围包括:住宅 、公寓、娱乐空间、办公空间、陈列展馆等工程的装饰装修、设计及施工。公司秉承“服务到永远”的经营理念,诚信打造透明工程,全力营造放心消费环境。用质量来表现,用服务来关怀,依靠客户口碑来不断提升佳盛品牌的知名度和影响力。
一直以来,“佳盛人”以客户的新房我的家为宗旨,以品牌建设为中心,致力于创造完美空间,展现精湛工艺。 在设计上,崇尚人性化、多元化、艺术化、更加强调功能、结构和形式的完整,追求材料、技术、空间的表现深度与精确,创造出别具风格的工作和生活环境。用领先的设计和专业的施工,做品味空间的引领者!
2010年被评为衢州市装饰行业协会副会长单位;
2011年被衢州市工商行政管理局评为衢州市家庭装饰消费维权示范单位;
2012年家装设计大赛中被衢州市广播电视总台评为观众最喜爱家装设计奖;
2013年被评为衢州市装修行业12315消费者维权联络站;
2012-2013年被衢州市柯城区住房城乡建设局评为衢州市家装行业骨干企业;
2014年被装饰协会评为衢州市首批倡导绿色装修单位;
2014年被衢州市工商行政管理局评为衢州市诚信装饰公司;
2011-2016年被衢州晚报评为十家最值得信赖的装饰企业;
2016年被市场监督管理局评为衢州市诚信装饰企业;
佳盛装饰,期待与您共同长期发展!
公司荣誉:


衢州市佳盛装饰工程有限公司
地址:浙江省衢州市西区双岭南路285号(翡翠湾小区东侧)
电话:0570- 3068373
手机:13867013688
联系人:周先生

衢州市佳盛装饰工程有限公司
地址:浙江省衢州市西区双岭南路285号(翡翠湾小区东侧)
电话:0570- 3068373
手机:13867013688
联系人:周先生
网址:www.qzjszs.com
- 上一个:衢州公馆俞总 下一个:美丽东城5-2-302返回产品列表



