公寓案例当前位置:首页>产品展示>公寓案例

- 详细介绍


项目地址:香榭丽舍
项目风格:韩式田园风
设计师: 林芝娟项目经理:周 工
开工日期:2016年12月19日
设计说明:韩式田园风格,设计上讲求心灵的自然回归感,给人一种扑面而来的浓郁气息。把一些精细的后期配饰融入设计风格之中,充分体现设计师和业主所追求的一种安逸、舒适的生活氛围。这个客厅大量使用碎花图案的各种布艺和挂饰!韩式家居的卧室布置较为温馨,作为主人的私密空间,主要以功能性和实用舒适为考虑的重点,一般的卧室不设顶灯,多用温馨柔软的成套布艺来装点,同时在软装和用色上非常统一。
设计师:林芝娟

项目经理:周工

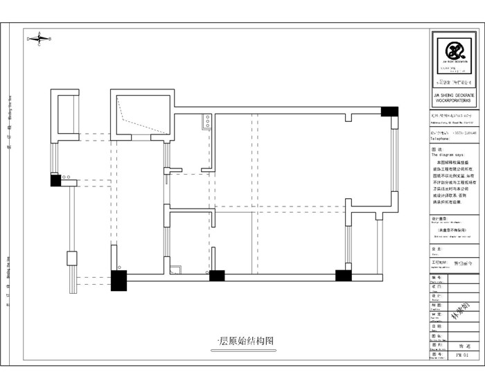
一楼原始结构图:

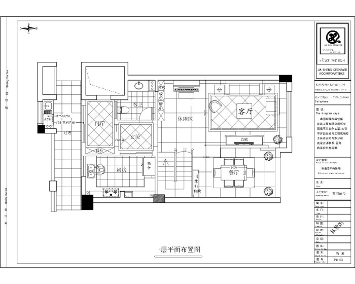
一楼平面布置图:

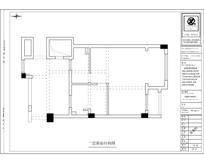
二楼原始结构图:

二楼平面布置图:

客厅效果图:

主卧效果图:

小区外景图:

开工照:(业主、项目经理与设计师合影)



摆8字~整齐摆放好~
开工大吉~

客户、设计师、项目经理现场沟通放样:

现场沟通方案:

施工现场临时马桶:

水电完工图:










泥工完工图:


厨房瓷砖整齐铺设~


卫生间瓷砖铺设



木工完工图:








佳盛装饰公司简介:
2003年,衢州市佳盛装饰工程有限公司成立。其业务范围包括:住宅 、公寓、娱乐空间、办公空间、陈列展馆等工程的装饰装修、设计及施工。公司秉承“服务到永远”的经营理念,诚信打造透明工程,全力营造放心消费环境。用质量来表现,用服务来关怀,依靠客户口碑来不断提升佳盛品牌的知名度和影响力。
一直以来,“佳盛人”以客户的新房我的家为宗旨,以品牌建设为中心,致力于创造完美空间,展现精湛工艺。 在设计上,崇尚人性化、多元化、艺术化、更加强调功能、结构和形式的完整,追求材料、技术、空间的表现深度与精确,创造出别具风格的工作和生活环境。用领先的设计和专业的施工,做品味空间的引领者!
2010年被评为衢州市装饰行业协会副会长单位;
2011年被衢州市工商行政管理局评为衢州市家庭装饰消费维权示范单位;
2012年家装设计大赛中被衢州市广播电视总台评为观众最喜爱家装设计奖;
2013年被评为衢州市装修行业12315消费者维权联络站;
2012-2013年被衢州市柯城区住房城乡建设局评为衢州市家装行业骨干企业;
2014年被装饰协会评为衢州市首批倡导绿色装修单位;
2014年被衢州市工商行政管理局评为衢州市诚信装饰公司;
2011-2016年被衢州晚报评为十家最值得信赖的装饰企业;
2016年被市场监督管理局评为衢州市诚信装饰企业;
佳盛装饰,期待与您共同长期发展!
公司荣誉:


衢州市佳盛装饰工程有限公司
地址:浙江省衢州市西区双岭南路285号(翡翠湾小区东侧)
电话:0570- 3068373
手机:13867013688
联系人:周先生

衢州市佳盛装饰工程有限公司
地址:浙江省衢州市西区双岭南路285号(翡翠湾小区东侧)
电话:0570- 3068373
手机:13867013688
联系人:周先生
网址:www.qzjszs.com
- 上一个:衢州公馆俞总 下一个:恒大御景半岛24-1-1901返回产品列表



