别墅案例 当前位置:首页>产品展示>别墅案例

- 详细介绍
项目地址:新湖玫瑰园
项目风格:现代风格
设 计 师:小 林
项目经理:周 工
开工日期:2020年5月27日
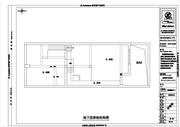
设计说明:现代主义风格是一种在形式上对现代主义进行修正的设计思潮与理念。后现代主义室内设计理念完全抛弃了现代主义的严肃与简朴,往往具有一种历史隐喻性,充满大量的装饰细节,刻意制造出一种含混不清、令人迷惑的情绪,强调与空间的联系,使用非传统的色彩,它所具有的矛盾性常使人产生厌倦,而这种厌倦正是后现代主义对过去50年的现代主义的典型心态。地下原始结构图:

地下平面布置图:

一楼原始结构图:

一楼平面布置图:

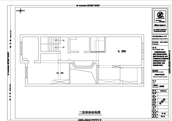
二楼原始结构图:

二楼平面布置图:

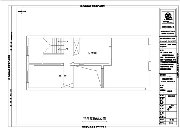
三楼原始结构图:

三楼平面布置图:

客厅效果图:


功能厅效果图:

卧室效果图:

业主、设计师、项目经理开工合影:

礼炮庆祝开工大吉:


举杯庆祝 开工顺顺利利:

开工第一锤由业主敲响:

门套保护以防施工过程磕碰到:

施工四大规范
水电完工:




佳盛装饰公司简介
2003年,衢州市佳盛装饰工程有限公司成立。其业务范围包括:住宅 、公寓、娱乐空间、办公空间、陈列展馆等工程的装饰装修、设计及施工。公司秉承“服务到永远”的经营理念,诚信打造透明工程,全力营造放心消费环境。用质量来表现,用服务来关怀,依靠客户口碑来不断提升佳盛品牌的知名度和影响力。
一直以来,“佳盛人”以客户的新房我的家为宗旨,以品牌建设为中心,致力于创造完美空间,展现精湛工艺。 在设计上,崇尚人性化、多元化、艺术化、更加强调功能、结构和形式的完整,追求材料、技术、空间的表现深度与精确,创造出别具风格的工作和生活环境。用领先的设计和专业的施工,做品味空间的引领者!
2010年被评为衢州市装饰行业协会副会长单位;
2011年被衢州市工商行政管理局评为衢州市家庭装饰消费维权示范单位;
2012年家装设计大赛中被衢州市广播电视总台评为观众最喜爱家装设计奖;
2013年被评为衢州市装修行业12315消费者维权联络站;
2012-2013年被衢州市柯城区住房城乡建设局评为衢州市家装行业骨干企业;
2014年被装饰协会评为衢州市首批倡导绿色装修单位;
2014年被衢州市工商行政管理局评为衢州市诚信装饰公司;
2011-2016年被衢州晚报评为十家最值得信赖的装饰企业;
2016年被市场监督管理局评为衢州市诚信装饰企业;佳盛装饰,期待与您共同长期发展!
公司荣誉:


衢州市佳盛装饰工程有限公司
地址:浙江省衢州市西区双岭南路285号(翡翠湾小区东侧)
电话:0570- 3068373
手机:13867013688
联系人:周先生

衢州市佳盛装饰工程有限公司
地址:浙江省衢州市西区双岭南路285号(翡翠湾小区东侧)
电话:0570- 3068373
手机:13867013688
联系人:周先生
网址:www.qzjszs.com
- 上一个:杨家山别墅徐总 下一个:莲花别墅返回产品列表



