公寓案例当前位置:首页>产品展示>公寓案例

- 详细介绍


项目地址:香榭丽舍
项目风格:美 式
设计师: 龚方平
项目经理:周工
开工日期:2016年5月31日装修预算:半包价129000元(半包不含墙地砖、厨房橱柜、门窗套、地板、灯具、窗帘、电器、沙发、床)
设计说明:
美式风格,顾名思义是来自于美国的装修和装饰风格。是殖民地风格中最著名的代表风格,某种意义上已经成了殖民地风格的代名词。美国是个移民国家,欧洲各国各民族人民来到美洲殖民地,把各民族各地区的装饰装修和家具风格都带到了美国,同时由于美国地大物博,极大的放开了移民们对尺寸的欲望,使得美式风格以宽大,舒适,杂糅各种风格而著称。美式风格简述
设计师: 龚方平

项目经理:周工

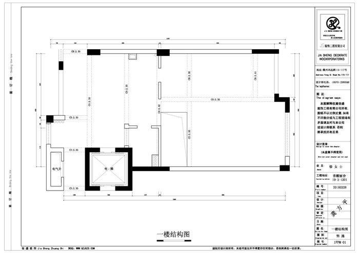
一层原始结构图:

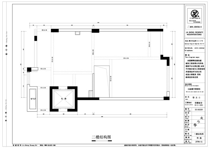
二层原始结构图:

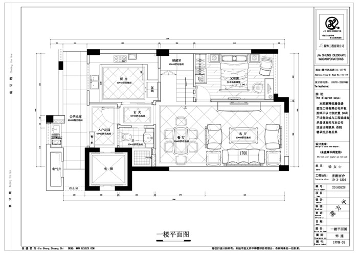
一层平面布置图:

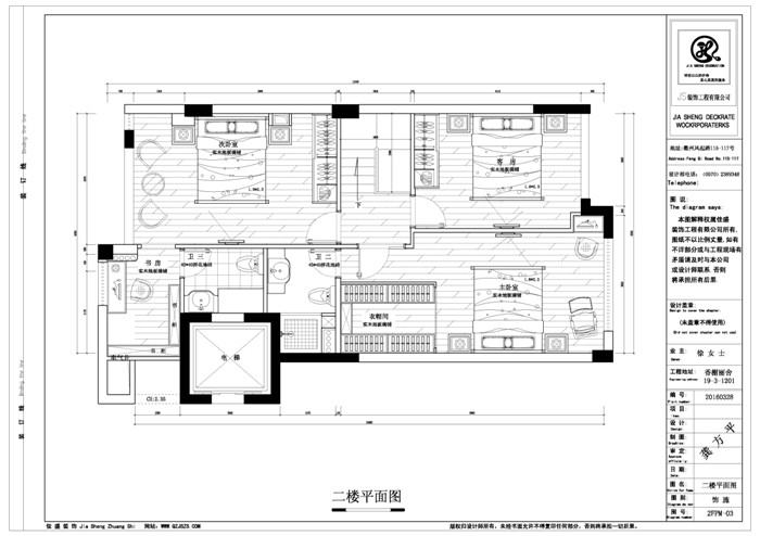
二楼平面布置图:

客厅效果图:

次卧效果图:

主卧效果图:

【佳盛装饰】恭贺 香榭丽舍周总豪宅开工大吉!周总选择我们装修,看了我们的设计和施工,还有管理和服务都非常认可,同时也对比了几家装饰公司,最终还是选择了我们佳盛装饰,也知道佳盛装饰是衢州第一口碑家装品牌!我们佳盛团队一定努力不负众望,做好每一套房子,给您一个舒适,环保的家!!!
开工照:(小区实景)









水电完工实景图:



















木工完工图:






佳盛装饰公司简介:
2003年,衢州市佳盛装饰工程有限公司成立。其业务范围包括:住宅 、公寓、娱乐空间、办公空间、陈列展馆等工程的装饰装修、设计及施工。公司秉承“服务到永远”的经营理念,诚信打造透明工程,全力营造放心消费环境。用质量来表现,用服务来关怀,依靠客户口碑来不断提升佳盛品牌的知名度和影响力。
一直以来,“佳盛人”以客户的新房我的家为宗旨,以品牌建设为中心,致力于创造完美空间,展现精湛工艺。 在设计上,崇尚人性化、多元化、艺术化、更加强调功能、结构和形式的完整,追求材料、技术、空间的表现深度与精确,创造出别具风格的工作和生活环境。用领先的设计和专业的施工,做品味空间的引领者!
2010年被评为衢州市装饰行业协会副会长单位;
2011年被衢州市工商行政管理局评为衢州市家庭装饰消费维权示范单位;
2012年家装设计大赛中被衢州市广播电视总台评为观众最喜爱家装设计奖;
2013年被评为衢州市装修行业12315消费者维权联络站;
2012-2013年被衢州市柯城区住房城乡建设局评为衢州市家装行业骨干企业;
2014年被装饰协会评为衢州市首批倡导绿色装修单位;
2014年被衢州市工商行政管理局评为衢州市诚信装饰公司;
2011-2016年被衢州晚报评为十家最值得信赖的装饰企业;
2016年被市场监督管理局评为衢州市诚信装饰企业;
佳盛装饰,期待与您共同长期发展!
公司荣誉:


衢州市佳盛装饰工程有限公司
地址:浙江省衢州市西区双岭南路285号(翡翠湾小区东侧)
电话:0570- 3068373
手机:13867013688
联系人:周先生

衢州市佳盛装饰工程有限公司
地址:浙江省衢州市西区双岭南路285号(翡翠湾小区东侧)
电话:0570- 3068373
手机:13867013688
联系人:周先生
网址:www.qzjszs.com
- 上一个:衢州公馆俞总 下一个:金都花园16-3-302返回产品列表



